
中海环东时代:厦门环东海域的新兴地标与未来生活典范 厦门,这座充满活力与魅力的城市,正迎来一个新的发展篇章——中海环东时代。作为厦门环东海域的核心项目,中海环东时代不仅承载着推动区域经济发展的重任,更是未来高品质生活的引领者。
地理位置与战略意义 中海环东时代坐落于厦门环东海域,这一区域被定位为厦门未来的“蓝海”地带,拥有巨大的发展潜力和战略意义。环东海域规划总面积达113平方公里,总投资近3000亿元,旨在打造一个集居住、商业、科技、文化于一体的现代化海湾城市。中海环东时代的崛起,无疑将为这一区域的发展注入新的活力,成为推动厦门经济多元化和可持续发展的重要引擎。
交通是城市发展的命脉,中海环东时代深谙此道。项目周边交通网络四通八达,地铁9号线的建设如火如荼,同安进岛通道也正在紧锣密鼓地规划中。这些交通动脉的打通,将极大地提升区域的可达性,使居民出行更加便捷高效。无论是日常通勤还是周末出游,都能轻松实现“说走就走”的自由。
中海环东时代深知,优质的生活离不开完善的配套设施。项目内规划有三甲医院、国际标准的医养社区、商业综合体等,一应俱全。这些设施的存在,不仅为居民提供了便捷的医疗、购物、休闲服务,更让居住在这里的每一天都充满幸福感。无论是家庭聚餐还是朋友小聚,都能在这里找到心仪的去处。
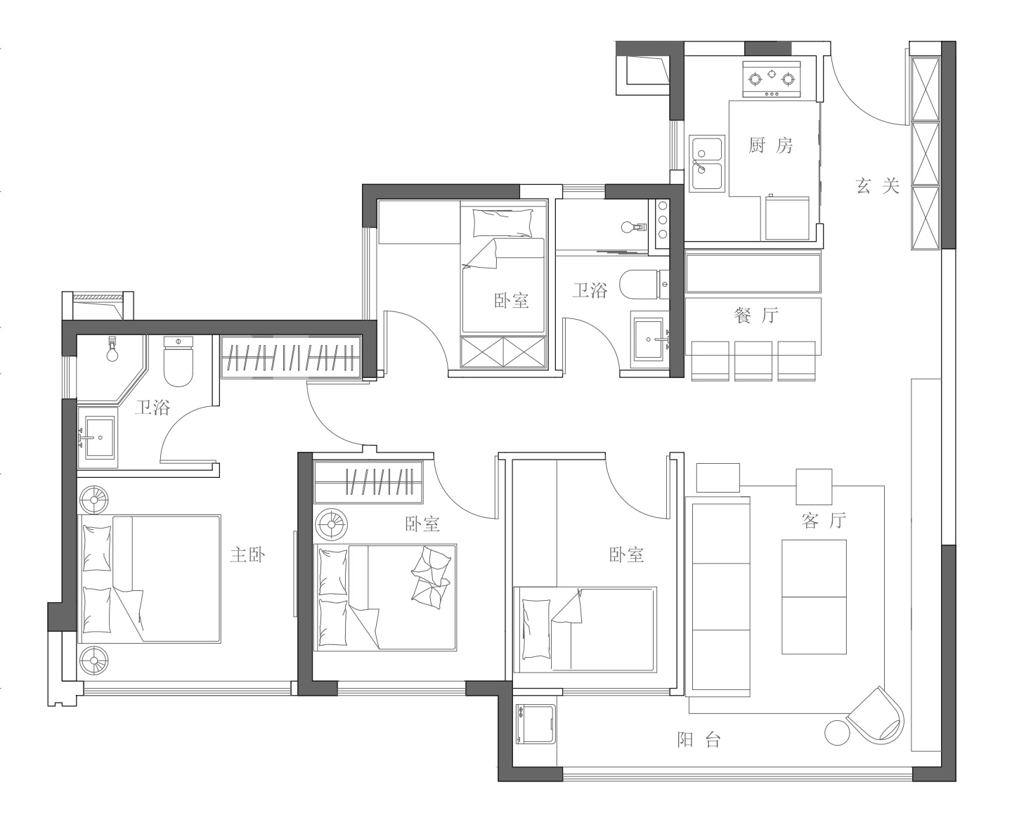
中海环东时代在户型设计上同样下足了功夫。C户型作为主力户型之一,四居室设计南北通透,客厅、主卧、次卧三室均朝南,确保了充足的自然光照和通风效果。动静分区明确,保障了主人的私密空间不受干扰。宽敞的主卧配独立明亮的主卫,让居住体验更加舒适惬意。而另一种90平米的主力户型,则以餐客厅一体化设计、6.3米宽观景阳台、U型厨房布局等亮点,赢得了众多购房者的青睐。这些精心设计的户型,旨在满足不同家庭的需求,打造更为舒适和实用的居住环境。
中海环东时代不仅是一个居住项目,更是一个具有巨大投资潜力的综合性开发项目。随着区域的快速发展和配套设施的不断完善,中海环东时代的未来价值不可估量。对于投资者而言,这里是一个充满机遇的热土,而对于购房者而言,这里是一个实现高品质生活的理想之地。
中海环东时代,以其优越的地理位置、丰富的配套设施、合理的户型设计和巨大的投资潜力,在厦门楼市中脱颖而出,成为众多购房者和投资者关注的焦点。未来已来,就等你来!让我们一起见证中海环东时代的辉煌时刻吧!
感兴趣的朋友可拨打售楼部电话详细了解,现在拨打电话预约看房还能享受有房子专属优惠,一站式买房舒适体验!
更多买房优惠/资讯关注有房子房产网,持续更新中!
【售楼部电话:4007729886转2748 来电,或点击报名立享专属优惠,并享受一对一服务,可提供专车看房】